Používame cookies

Používaním týchto stránok súhlasíte s používaním cookies, ktoré nám pomáhajú zabezpečiť lepšie služby. Viac info

 

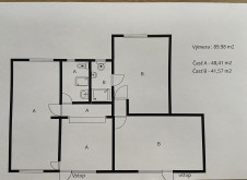
Na predaj kancelárske/obchodné priestory 90 m2 -výhodne

Ulica: Moyzesova
Obec: Považská Bystrica
Okres: Považská Bystrica
Kraj: Trenčiansky kraj
Druh: Priestory
Typ: Predaj
Typ objektu: Kancelárske priestory
Iné:
Rezervované

Popis nehnuteľnosti


!!Cena platná len do konca roka 2025!!

Ponúkame na predaj atraktívne nebytové priestory s výbornou polohou v Považskej Bystrici, na Moyzesovej ulici. Priestory sa nachádzajú na terase bytového domu a sú ideálne na zriadenie sídla firmy, kancelárií, prevádzky, ambulancie, kancelárie pre notára, právnika alebo kombináciu podnikania a bývania.

Výhody nehnuteľnosti:

  • Celková výmera: 89,98 m² / priestor č. 1 má 41,57 m2, a priestor č. 2 má 48,41 m2/- možnosť oddeleného využitia - alebo ako jeden veľký priestor
  • Kompletné inžinierske siete: elektrina, voda, plyn, kanalizácia
  • Oba priestory majú plnohodnotné využitie: 2 miestnosti, kuchynský kút, kúpeľňa s WC
  • 2 samostatné vchody s bezpečnostnými dverami
  • Veľké výklady s bezpečnostným trojsklom a žalúziami
  • Bezbariérový prístup do oboch častí

 

V cene je zahrnuté:

-Kompletný právny a administratívny servis

-Provízia realitnej kancelárie

Ak hľadáte nehnuteľnosť s univerzálnym využitím – či už na podnikanie, investíciu alebo kombinované bývanie s podnikaním – tento priestor je výbornou voľbou.

V prípade záujmu nás neváhajte kontaktovať. 

Vlastnosti

Status:
rezervované
Vlastníctvo:
osobné
Úžitková plocha:
90 m2
Zastavaná plocha:
90 m2
Podlahová plocha:
90 m2
Stav:
úplne prerobený
Energetický certifikát:
žiadne
Typ budovy:
panelová stavba
Typ výbavy:
čiastočne vybavený
Terasa:
áno
Verejné vonkajšie parkovanie:
áno
Celková plocha:
90 m2
Inžinierske siete:
áno
Voda:
áno
Elektrika:
áno
Plyn:
áno
Kanalizácia:
áno
Status:
rezervované
Vlastníctvo:
osobné
Úžitková plocha:
90 m2
Zastavaná plocha:
90 m2
Podlahová plocha:
90 m2
Stav:
úplne prerobený
Energetický certifikát:
žiadne
Typ budovy:
panelová stavba
Typ výbavy:
čiastočne vybavený
Terasa:
áno
Verejné vonkajšie parkovanie:
áno
Celková plocha:
90 m2
Inžinierske siete:
áno
Voda:
áno
Elektrika:
áno
Plyn:
áno
Kanalizácia:
áno

Informatívna úverová kalkulačka

Pozrieť na mape

Maklér

Beata Černákova

Beata Černákova

Maklér

  • Slovensky
  • Česky
  • English
  • Italiano
  • rusr
  • sora

Radi Vám poradíme