| Ulica: | Dr. Karola Kmeťku |
|---|---|
| Obec: | Teplička nad Váhom |
| Okres: | Žilina |
| Kraj: | Žilinský kraj |
| Druh: | Domy |
| Typ: | Predaj |
| Typ domu: | Rodinný dom |
| Iné: |
Pozrite si 3D obhliadku apartmánu, korý momentálne prináša príjem.
Ponúkame na predaj rodinný dom so samostatnou bytovou jednotkou, ktorý predstavuje zaujímavú kombináciu rodinného bývania a nehnuteľnosti, ktorá prináša pravidelný príjem. Nachádza sa v centre obce Teplička nad Váhom s rýchlou dostupnosťou do Žiliny.
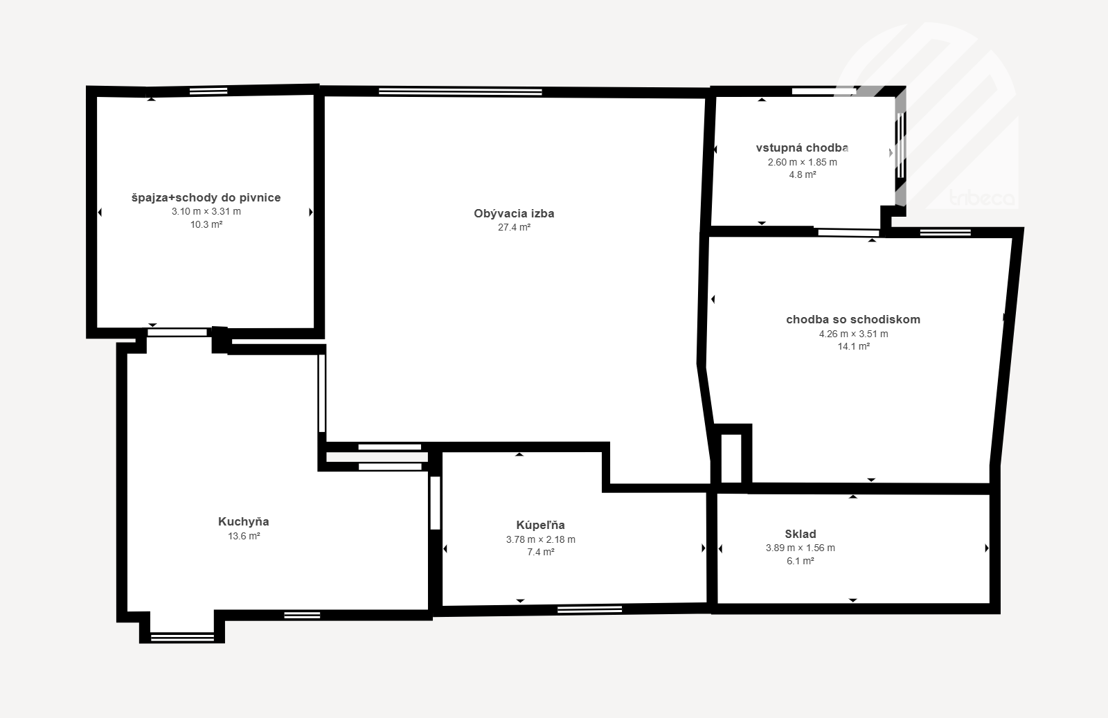
DISPOZÍCIA A STAV NEHNUTEĽNOSTI: Dom je rozdelený tak, aby ste mali pokojné bývanie a zároveň oddelený priestor, ktorý môže pracovať pre vás.
🔹 HLAVNÝ DOM / viď pôdorys /
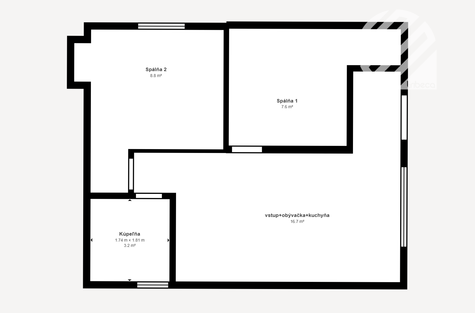
🔹 SAMOSTATNÝ APARTMÁN - 40 m2 / viď pôdorys/
🔹 POZEMOK A EXTERIÉR
Prečo túto nehnuteľnosť?
Myšlienka pôvodných majiteľov bola vytvoriť pri svojom bývaní niečo, čo im zabezpečí pravidený príjem financií. Samostatný dvojizbový, plne vybavený apartmán s vlastným vchodom a vonkajším posedením naplnil tento zámer. Momentálne už 3 roky generuje pravidelný príjem z prenájmu cez zabehnutý Booking. Takže vy bývate a Váš dom Vám zarába.
Ďalšie možnosti využitia:
✔ viacgeneračné bývanie (rodičia, deti, starí rodičia)
✔dlhodobý prenájom tejto časti nehnuteľnosti
✔ kombinácia bývania a podnikania ( sídlo menšej firmy, kancelárie)
📍 LOKALITA
Teplička nad Váhom patrí medzi vyhľadávané obce v okolí Žiliny – kompletná občianska vybavenosť, pokojné prostredie a výborná dostupnosť do mesta. Je to lokalita s dlhodobým dopytom po bývaní a prenájme.
Cena: 320 000 €
Dohoda na cene možná.
📞 V prípade záujmu radi poskytneme doplňujúce informácie alebo dohodneme obhliadku.
Maklér